Продам помещение свободного назначения 46.6 м.кв.

Просмотров 40
10 718 000 руб.
Всеволожск , Европейский проспект, д.22
Отдел продаж
Показать телефон
Данные актуальны на 19.09.2025
Пожаловаться на объявление
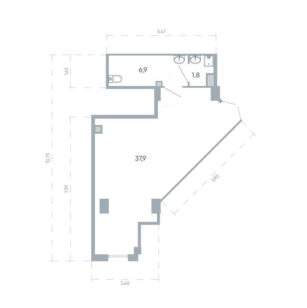
Продается коммерческое помещение свободного назначения на 2 эт в ЖК Европейский парк, в самом сердце г. Кудрово. Помещение с отличной проходимостью, буквальная близость к парку Оккервиль, в комплексе проживает не менее 3000 жителей. Большинство помещений уже выкуплены и сданы в аренду. Площадь помещения - 46,6 м.кв. ; Высота потолка - 3,3 м. ; Электрическая мощность - 5,6 кВт; Количество мокрых точек - 2 шт; Количество входов - 1 шт (с улицы, подъем по лестнице) . Назначение помещения универсальное, возможные варианты использования: медицинское учреждение, магазин, ресторан/кафе, салон красоты, офис, банк, фитнес и др. В стоимость помещения включен НДС в размере 5%. Индивидуальные условия приобретения и полный ассортимент коммерческих помещений уточняйте у менеджера отдела продаж.

Дополнительная информация

Тип здания Отдельное здание Этаж 2 Этажность 23 Количество комнат - Вход Отдельный Ремонт Без ремонта
Интернет - Кондиционер - Вентиляция - Пожарная сигнализация - Красная линия -
Динамика изменения цен на рынке недвижимости ?

По городу Всеволожск, в категории Универсальные помещения
За последние полгода средняя сумма за кв.м. выросла на 9906 руб. Колебание цен происходило от 152957 руб. до 164522 руб. На текущий момент наблюдается тенденция к росту цены.
Похожие объявления
Обновлено
21.01.2026
Фотографии
39
Объявление 597650
Всеволожск, Европейский проспект, д.22
10 672 000
руб. Продажа
46.4 м2
Обновлено
21.01.2026
Фотографии
21
Объявление 597651
Всеволожск, Европейский проспект, д.22
12 328 000
руб. Продажа
53.6 м2
Обновлено
15.12.2025
Фотографии
37
Объявление 626638
Всеволожск, Строителей проспект, д.16
10 582 000
руб. Продажа
48.1 м2
Обновлено
19.09.2025
Фотографии
22
Объявление 626645
Всеволожск, Европейский проспект, д.22
10 672 000
руб. Продажа
46.4 м2
Обновлено
19.09.2025
Фотографии
24
Объявление 626647
Всеволожск, Европейский проспект, д.22
11 431 000
руб. Продажа
49.7 м2
Обновлено
19.09.2025
Фотографии
10
Объявление 624728
Всеволожск, Европейский проспект, д.22
11 224 000
руб. Продажа
48.8 м2
Обновлено
19.09.2025
Фотографии
23
Объявление 624729
Всеволожск, Европейский проспект, д.22
10 097 000
руб. Продажа
43.9 м2
Обновлено
19.09.2025
Фотографии
22
Объявление 626643
Всеволожск, Европейский проспект, д.22
10 281 000
руб. Продажа
44.7 м2
Обновлено
27.06.2025
Фотографии
5
Объявление 705911
Всеволожск, Взлетная улица, д.16
10 800 000
руб. Продажа
54.8 м2
Обновлено
27.06.2025
Фотографии
5
Объявление 699277
Всеволожск, Взлетная улица, д.16
9 000 000
руб. Продажа
47.2 м2
Вход в личный кабинет